Phone - 0458 000 456

sales@westonrealestate.melbourne

facebook
Sold

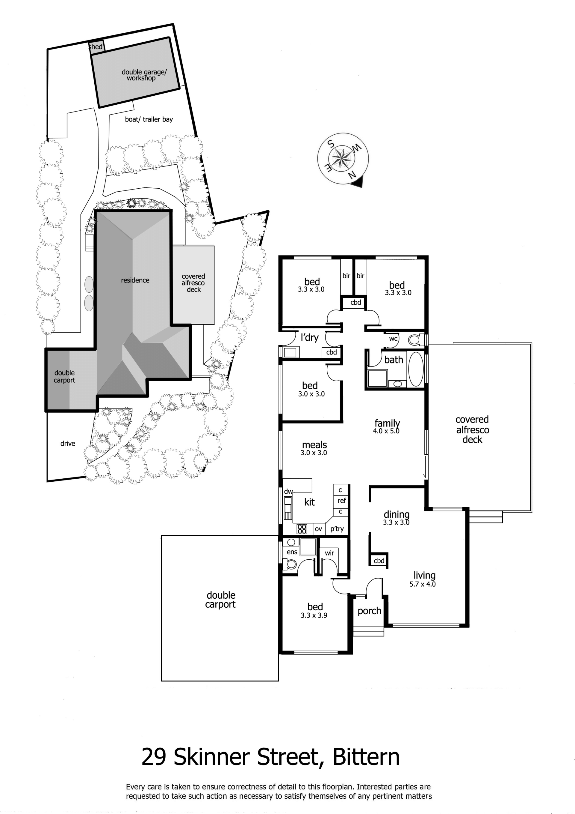
Modern 4 Bedroom Family Home

Perfectly positioned in a court location is this delightful 4 bedroom residence offering entrance hall, formal lounge and dining room, spacious kitchen with meals/dining area and a family room opening to a huge out door decking and under cover entertainment area. The generous size master bedroom features an ensuite and walk in robe, all the other bedrooms are a good size with a centrally located full size main bathroom, separate toilet and laundry. Outside you will find a huge double carport with high ceilings, ideal for boats or caravans and at the rear of the block you will find a double lock up garage and lots of land. NOTE Land size 900m2 approx. Other features include gas ducted heating, evaporated cooling and lots of space inside and out. Enjoy the lifestyle you deserve, Call NOW for an inspection.

Features

Deck Outdoor entertainment area Terrace/Paved Fenced Undercover outdoor area
4 2 6 910 m2
Address 29 Skinner Street, Bittern
Price SOLD
Property Type residential
Property ID 70
Category House
Land Area 910 m2

Agent Details

Mike Weston photo

Mike Weston

0458 000 456
View Profile